Featured News - Current News - Archived News - News Categories

Congressman Brian Higgins addresses the media in Niagara Falls.
Congressman Brian Higgins addresses the media in Niagara Falls.

Higgins asks NYPA to continue waterfront development

Submitted

Wed, Nov 22nd 2017 11:20 am
Congressman calls on NYPA to assume responsibility for reconnecting Niagara Falls
Congressman Brian Higgins, D-NY-26, stood along the edge of the Niagara River on Tuesday to unveil a vision to sustain momentum along the City of Niagara Falls waterfront.
In a letter to New York Power Authority President Gil Quiniones, Higgins commended NYPA for taking responsibility for removal of the Niagara Scenic Parkway (formerly Robert Moses Parkway) north section, but pressed for NYPA to also "fulfill its obligation along the south section."
"Under Robert Moses' leadership, NYPA acquired the entire southern waterfront of the City of Niagara Falls from the I-190 to the State Park. Now that the northern section from the falls to Findlay Drive is almost ready for construction, I write today to advocate that the authority finance the advancement of the proposed redevelopment of the southern section of the parkway along the same lines," Higgins said.
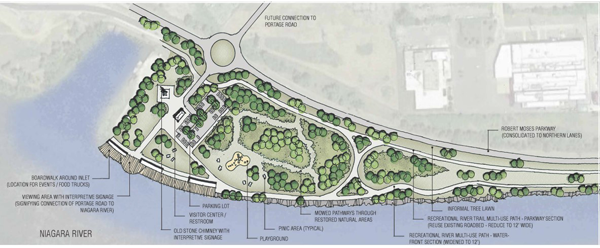
The Niagara Falls Opportunity Area study began in 2007 and a draft plan was released in 2017. The plan encompasses more than 1,800 acres, with its southern border being the Niagara Scenic Parkway south section, sitting on more than 134 acres along the Niagara River between the LaSalle Expressway and downtown Niagara Falls.
Just over 60 percent of the land within the Niagara Falls Opportunity Area is privately owned. The remaining 40 percent is public land, with NYPA owning a quarter of the public property (10 percent).
"For 10 years, the community has worked to develop a plan that brings people, neighborhoods and businesses closer to the water's edge but, without funding, this is just another plan that sits on a shelf," Higgins said. "NYPA built the Robert Moses Parkway and continues to own this valuable land, and it is their responsibility to do right by the community that hosts their power generation plant and has paid the price for NYPA's role in constructing the parkway and contributing to the industrialization of waterfront property."
Higgins is calling on NYPA to fund the waterfront access components of the Niagara Opportunity Area Plan and "take responsibility for beginning to right this historic wrong they created through their support of the chemical industry in Niagara Falls, by advancing the redevelopment of the recently closed former DuPont property adjacent to NYPA's own property and at the mouth of Gill Creek. This rehabilitation should include the ecological restoration of Gill Creek to serve as a clean and green connection between the city neighborhoods through which it wants and the Niagara River waterfront."
The Niagara Opportunity Area plan proposes elimination of the southern/eastbound section of the Robert Moses Parkway south to make way for additional green space along the water's edge. The plan also creates north-south connections from the neighborhoods to the waterfront at Portage Road and Hyde Park Boulevard. Additional features include landscaping, boardwalk, a fishing pier, playground, picnic area and a multiuse waterfront path.
Higgins wrote, "Instead of cutting off residential neighborhoods and business districts from their waterfront as Robert Moses did, this plan would provide generous vehicular, bicycle and pedestrian access connecting these areas to the waterfront. Instead of blocking international tourist traffic from restaurants on Pine Avenue and the hotels on Niagara Falls Boulevard, as the current configuration does, this plan would provide easy access between local businesses and the tourists who come from around the world to see the falls."
In January 2013, in the first days after assuming representation of the City of Niagara Falls, Higgins called on NYPA to pay for the Robert Moses Parkway north section removal. In a detailed document titled "The Niagara Falls Waterfront: NYPA's Responsibility for the Robert Moses Parkway," Higgins laid out the argument for NYPA's obligation to the City of Niagara Falls and later pointed out "the community injustice" while standing next to the late Mamie Simonson, whose home was taken against her will by NYPA in 1959 to allow for construction of the parkway. The congressman subsequently met with the NYPA board chair and later had conversations with the NYPA president.
One year after Higgins' push, in January 2014, the NYPA board of trustees approved the first $2 million toward design of the Robert Moses Parkway north project.
The required Environmental Impact Statement is now complete and the project was authorized by the Federal Highway Administration in February. Total cost for the project is estimated at $42 million.
The project includes: removal of approximately two miles of the expressway from Main Street to Findlay Drive, installation of a trail network on lands reclaimed from the parkway removal, and reconstruction of Whirlpool Street and a portion of Third Street, among other features.
Construction on removal of the north section of the Robert Moses Parkway is scheduled to begin in the spring of 2018.
In addition to the $42 million Higgins secured from NYPA for removal of the parkway's north section, approximately $1 million in federal funding contributed to the $15.8 million New York state project reconstructing the western end of the parkway south, and another $1.04 million in federal funding supported reconstruction of Buffalo Avenue, which runs through the business district, parallel to the parkway.

Hometown News

View All News